在之前的教程中,我们为大家讲解了如何使用浩辰CAD机械2011软件绘制二级齿轮减速器装配图,而在今天的CAD教程里,我们依然会带来一篇减速器装配图的绘制教程,只不过,我们今天演示的是减速器剖面俯视图的绘制方法。
1、使用浩辰CAD机械2011绘制齿轮剖面图。由于齿轮剖面图形对称,因此我们可以使用浩辰CAD机械软件绘图工具中的【对称划线】命令来绘制(如图1)。

图1
2、以轴为基础,使用浩辰CAD机械软件绘制俯视图减速器箱体外轮廓(如图2)。

图2
3、绘制箱体端盖剖视图并填充图案。其中,我们可以使用浩辰CAD机械软件绘图工具中的【波浪线】命令来绘制剖面曲线,而轴承端盖则可以使用【对称划线】来绘制(如图3)。

图3
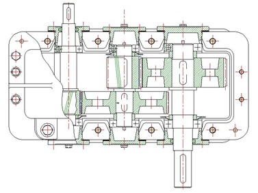
4、绘制螺钉孔和销钉孔:依次点击浩辰CAD机械软件的【构造工具】——【单孔】,在对话框中输入相关数据,快速绘制螺钉孔和销钉孔(如图4)。

图4
这样,我们的二级齿轮减速器俯视图就完成了绘制。从绘制效果来看,借助于浩辰CAD机械软件的专业绘图功能,此俯视图较好的表现了减速器的结构,在构图上也比较清晰,有兴趣的读者不妨下载浩辰CAD机械2011软件进行实际体验:http://www.gstarcad.com /cad_56_45.html。
